High quality renovation project with panoramic views on the Montgó, Javea.
Important features of this house / villa
- Mountain views
- Terrace
- Swimming Pool
- Garden
- Gym
- Parking
- Views
- Storage room
- Renovated
- Panoramic view
- Outdoor kitchen
- Open kitchen
- Heating
- Equipped Kitchen
- Double glazing
- Chill out area
- Built-in wardrobes
- Barbecue
- Air conditioning
- Floor plan 170m²
- Constructed area 170m²
Everything you need to know about this house / villa for sale
Located on the prestigious slopes of the Montgó Massif in Javea, this exceptional villa is currently undergoing a comprehensive, high-quality renovation, with completion in 2026.
The property enjoys beautiful open country and valley views, stretching across the Montgó’s natural landscape and rolling countryside. From its elevated position, we can appreciate sweeping vistas that capture the changing colours of the seasons, expansive green zones, and breathtaking sunsets over the valley. By night, the distant lights create a tranquil and atmospheric setting.
The renovation has been carefully designed to maximise these views from all principal living areas. Large-format windows and expansive doors will frame the landscape, allowing natural light to flood the interiors while creating seamless indoor–outdoor living. Terraces and outdoor entertaining spaces are positioned to take full advantage of the open outlook, providing the perfect setting for relaxing or hosting guests against a stunning Mediterranean backdrop.
Once completed, the villa will offer modern open-plan living, elegant bedroom suites, and high-spec finishes throughout, combining contemporary comfort with the beauty of its natural surroundings.
Please contact us for further information.
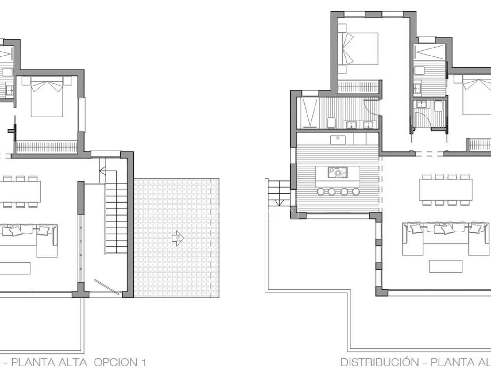
Distribution of this house / villa
Upper level
- Open-plan living/dining room
- Kitchen with island
- Main bedroom with ensuite bathroom
- Guest bedroom
- Bathroom
Lower level
- 2 guest bedrooms
- 1 bathroom
- Technical room
- Utility room
- Gym
Jávea, Costa Blanca: Location and surroundings of this property
At the foot of the majestic Montgó Massif, the area offers beautiful open views, peaceful surroundings and direct access to walking and cycling routes within the natural park. Despite its serene atmosphere, everything you need is just minutes away.
A well-stocked local supermarket with an on-site coffee shop is nearby — perfect for daily essentials or a relaxed morning café stop. The area also benefits from a variety of sports facilities including tennis courts, padel courts, and fitness centres, making it ideal for an active lifestyle.
Golf enthusiasts will appreciate the close proximity to La Sella Golf, an established 27-hole course set in beautiful Mediterranean surroundings. Adjacent to the course is the elegant Denia Marriott La Sella Golf Resort & Spa, offering a luxury spa, fully equipped gym, and several restaurants — ideal for wellness days, fine dining, or hosting visiting friends and family.
The Montgó area itself is home to several highly regarded restaurants, where you can enjoy traditional Spanish cuisine and panoramic valley views. Just a short drive away lies the charming village of Jesús Pobre, famous for its authentic atmosphere and popular weekly farmers’ market, where local produce and artisan goods create a wonderful community feel.
The historic Old Town of Jávea is only a few minutes away, offering charming streets, boutique shops, tapas bars and cultural landmarks. Public transport connections are easily accessible, with regular bus services linking the Old Town, port and Arenal beach areas, as well as neighbouring towns.
Healthcare facilities are conveniently close, including local medical centres and pharmacies, while larger hospitals in Dénia are within easy reach. For families, several well-regarded international schools are located in the surrounding area, making this an excellent location for both permanent living and holiday homes.
This location on the Montgó perfectly balances privacy, natural beauty and accessibility — offering a relaxed Mediterranean lifestyle with every convenience close at hand.
Energy certificate for this property
Energy Certificate : In process
Similar properties for sale in Jávea
Not exactly what you're looking for?







































































































































































































































































































































































































































































