This property is part of the Mediterranea Villas, El Puig, Valencia.
View development details and other properties within this development
A new development of Villas for sale in El Puig beach area, in Valencia, with a starting price of €460,000
Important features of this house / villa
- Terrace
- Private garage
- Natural light
- Parking
- Utility room
- Open kitchen
- New build
- Near international schools
- Exterior
- Equipped Kitchen
- Double glazing
- Chill out area
- Built-in wardrobes
- Air conditioning
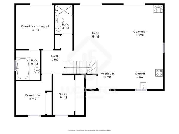
- Floor plan 211m²
- Constructed area 211m²
- Liveable area 143m²
- Constructed with common area 211m²
Everything you need to know about this house / villa for sale
Lucas Fox presents the new build Development Villas, with 12 semi-detached houses, designed with an impeccable Mediterranean style and intended to offer maximum comfort.
Each property has a surface area of 211 m² distributed over three floors, with a spectacular private terrace where you can relax and enjoy unobstructed views, as well as parking for one vehicle.
Possibility of customizing the homes, with the option to add an extra bedroom , home automation, elevator, ...
This project stands out for its elegant, cutting-edge design and the use of top-quality, highly functional materials. It features thermal insulation in the facades and roofs for maximum energy efficiency, wood-effect PVC window frames with double glazing for greater comfort, and light-colored porcelain flooring that enhances the natural light.
The open-plan kitchens feature custom-built units with natural wood doors and microcement countertops, while the bathrooms boast a modern, minimalist design with wall-hung toilets and black fixtures. They also include energy-efficient LED lighting, an aerothermics system for efficient hot water production, and heating and cooling air conditioning for optimal comfort year-round. The plumbing and sanitary ware have been designed using highly durable materials.
The area boasts a charming seafront promenade, lined with gardens and palm trees that create a pleasant environment, perfect for strolling and relaxing. Furthermore, during the summer, various activities are organized along the seafront, such as meditation, yoga, and tai chi classes.
With exceptional design, a prime location and an expanding market, this is a fantastic opportunity to live by the Mediterranean.
Two units with north-south cross orientation remain available
Please contact us for more information.
Extras
- Avant-garde design with top-quality materials
- Thermal insulation in facades and roofs
- Wood-effect PVC carpentry and double glazing
- Porcelain flooring in light tones
- Open kitchens with built-in cabinets with natural wood doors and microcement countertops.
- Modern and minimalist bathrooms, with wall-hung toilets and black faucets
- Low-consumption LED lighting
- Aerothermics system for hot water production
- Hot/cold air conditioning.
- Plumbing and sanitation with highly durable materials
El Puig / Puebla Farnals, Valencia: Location and surroundings of this property
Its fantastic location just steps from the beach is a major highlight. Puig de Santa Maria offers a wide variety of beaches where you can enjoy excellent weather and numerous amenities. Among them, Puig Val-Play Puig stands out, a beach with calm waters, ideal for a relaxing bathroom and a complete escape from daily stress. This beach combines fine sand with some sections of pebbles. Furthermore, it boasts the prestigious Q for Tourist Quality certification and complies with ISO 14001 standards, guaranteeing a high level of quality.
El Puig de Santa María offers the tranquility of a natural setting without losing its connection to the city. With an excellent transport network, you can reach Valencia in just a few minutes. Furthermore, El Puig is a destination steeped in history and culture, boasting monuments such as the Monastery of El Puig.
Energy certificate for this property
Energy consumption : A
Emissions : A
Similar properties for sale in Sagunto
Not exactly what you're looking for?
















































































































































































































































































































































































































