Exclusive new build villa under construction, with contemporary architecture, modern layout designed to maximize light, southerly aspect, sea views and private pool for sale in the Casa Nova development , in Sant Feliu.
Important features of this house / villa
- Sea views
- Mountain views
- Swimming Pool
- Garden
- Private garage
- Natural light
- Parking
- Walk-in wardrobe
- Views
- Solar panels
- Panoramic view
- Outdoor kitchen
- Open kitchen
- New build
- Interior
- Heating
- Exterior
- Equipped Kitchen
- Double glazing
- Chill out area
- Built-in wardrobes
- Balcony
- Air conditioning
- Floor plan 200m²
- Constructed area 242m²
Everything you need to know about this house / villa for sale
Lucas Fox presents this new build , contemporary villa in one of the most sought-after residential areas of Sant Feliu de Guíxols, in the Casa Nova development . Its southerly aspect affords fabulous, unobstructed sea views and abundant natural light throughout the day.
The property is distributed over two carefully designed floors. On the ground floor, we find the night area, consisting of two spacious double bedrooms (one of almost 18 m²), both with en-suite bathroom . There is also a separate utility room room, a hall, a toilet , and direct access to the large, enclosed garage of approximately 29 m².
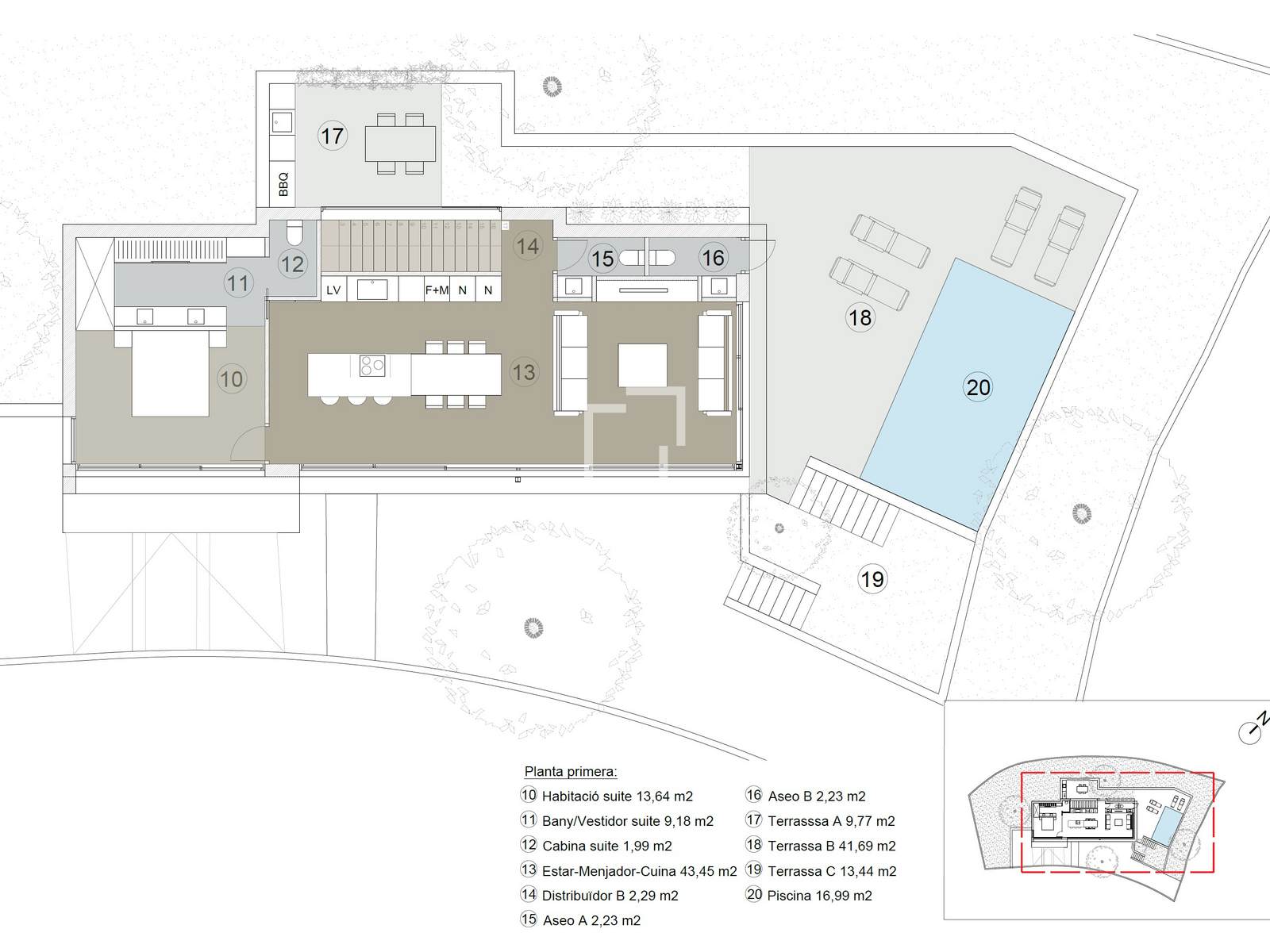
The first floor houses the spectacular day area, with an open-plan living-dining room and kitchen spanning over 43 m². From here, large windows connect the interior to several terraces totaling more than 60 m². A guest toilet is also provided, ideal for all guests. On this same level is the main bedroom, complete with a dressing room, en-private bathroom , and direct access to the terrace.
The exterior features a private swimming pool of approximately 17 m², seamlessly integrated into the design, ideal for enjoying the Mediterranean climate with open views. There is also an exterior kitchen to fully enjoy the fresh air and a toilet to serve the pool and outdoor areas.
The house has the highest levels of comfort and features, such as aerothermics air conditioning and underfloor heating heating.
A property with modern lines, efficient layout and spaces designed for living both in summer and throughout the year, just minutes from the centre and beaches of Sant Feliu.
Exclusive listing
Property only available with Lucas Fox
Extras
- New build construction
- Expected delivery: summer (July–September)
- Casa Nova Development
- Southerly aspect
- Fantastic panoramic views of the sea and mountains
- Contemporary architecture
- living-dining room-kitchen area of 43.45 m²
- High efficiency
- Brightness
- Aerothermics air conditioning
- Underfloor heating
Distribution of this house / villa
Ground floor
- 2 double bedrooms (11.99 m² and 17.78 m²)
- Full bathroom
- Toilet
- Utility room
- Hall
- Enclosed garage of 29.30 m²
First floor
- Living room– dining room and open kitchen 43.45 m²
- Main bedroom with dressing room and private bathroom
- Guest toilet
- Terrace of 9.77 m²
- Terrace of 41.69 m²
- Terrace of 13.44 m²
Exterior
- Private pool of 16.99 m²
- Exterior kitchen
- Guest toilet
Sant Feliu de Guíxols, Costa Brava: Location and surroundings of this property
This property is located in the lower part of the Casa Nova development , in a well-established residential area, close to the sea and with good connections to Girona, its airport, and the city of Barcelona. It is a 5-minute car from the centre of Sant Feliu de Guíxols and the beach, 10 minutes from Platja d'Aro, 30 minutes from Girona, and 1 hour from Barcelona.
Similar properties for sale in Sant Feliu de Guíxols
Not exactly what you're looking for?



























































































































































































































