townhouse of 150 m² built with 4 bedrooms, 3 bathrooms, terrace, private garden , garage and access to the communal area with pool and gardens for sale just 3 minutes from the centre of Sant Feliu de Guíxols.
Important features of this house / villa
- Sea views
- Swimming Pool
- Garden
- Private garage
- Natural light
- Parking
- Views
- Storage room
- Pet-friendly
- Heating
- Gated Community
- Equipped Kitchen
- Chill out area
- Built-in wardrobes
- Balcony
- Alarm
- Floor plan 110m²
- Constructed area 132m²
Everything you need to know about this house / villa for sale
In the quiet and prestigious Les Penyes development , just three minutes from the centre of Sant Feliu de Guíxols, but in a privileged natural environment, is this bright and welcoming townhouse with private garden , ideal both as a regular residence and as a second property on the Costa Brava.
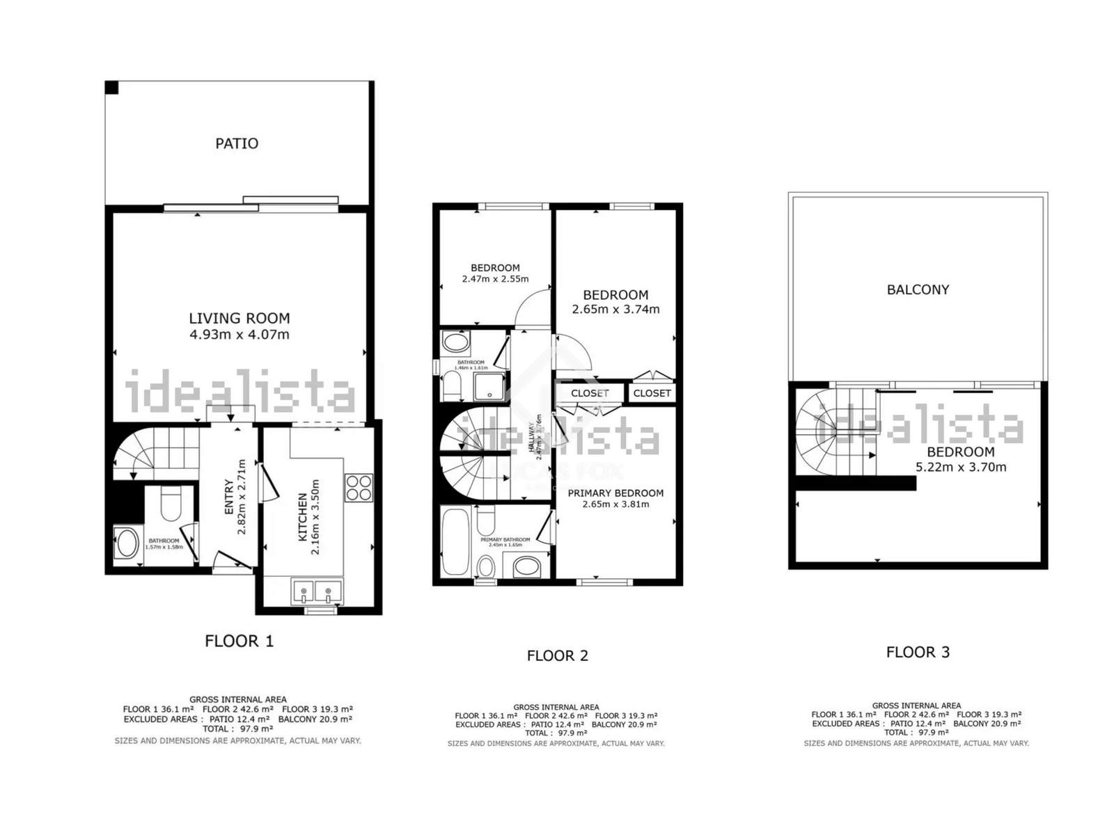
The property is spread over three floors and is very comfortable and functional. It features spacious rooms, good orientation, and excellent access to the sea and local amenities .
On the ground floor, there is a spacious private garden with natural grass, perfect for enjoying al fresco meals, family afternoons, or relaxing in the sun. The garden provides direct access to the interior of the property. The day area features a bright and airy living-dining room with direct access to the exterior and large windows that flood the space with natural light. Also on this floor are a fully equipped separate kitchen and a guest toilet.
On the first floor, there are three double bedrooms, all with good natural light and built-in wardrobes. The main bedroom has an en-private bathroom, while the other two share a full bathroom with a functional and modern design.
The upper floor houses a spacious attic, currently converted into a fourth bedroom with access to a lovely private terrace, ideal as a chill-out area, study, games room , or additional bedroom . From here, you can enjoy a pleasant, unobstructed view and a peaceful atmosphere, perfect for unwinding.
The property features a closed garage with direct access to the garden, a storage room, individual mains gas heating, and a southerly aspect that maximizes sunlight throughout the day.
The communal area is one of the great attractions of the complex: it has a large swimming pool with a solarium and carefully maintained gardens, ideal for the whole family.
The house is in excellent condition: it's freshly painted and ready to move into, requiring no renovations. Its location is superb: just minutes from the centre of Sant Feliu de Guíxols, where you'll find all amenities, shops, and restaurants, and a 10-minute car from Platja d'Aro, one of the most popular destinations on the Costa Brava, with its beaches, shops, and year-round leisure activities.
Please contact us for more information.
Extras
- Townhouse in private development
- 150 m² built
- Private garden with natural grass
- Upper terrace with unobstructed views
- built-in wardrobes
- Individual mains gas heating
- Southerly aspect
- Private garage and storage room
- Communal pool and gardens
- In excellent condition
Distribution of this house / villa
Ground floor
- Private garden
- living-dining room with access to the exterior
- Separate kitchen
- Toilet
- Garage access
First floor
- 2 bedrooms
- Bathroom
- Main bedroom with private bathroom
Second floor
- Attic/penthouse with access to private terrace
Sant Feliu de Guíxols, Costa Brava: Location and surroundings of this property
This house is located in the Les Penyes development , one of the most sought-after areas of Sant Feliu de Guíxols, in a quiet residential setting just three minutes from the town centre and the seafront promenade. The location offers easy access to the sea, iconic beaches, and all amenities, with quick access to Platja d'Aro, S'Agaró, and Girona.
Energy certificate for this property
Energy consumption D : 125kWh/m²/year
Emissions D : 26kg CO₂/m²/year
- 2
- 3
- 4
- 5
- 6
- 7
- 8
- 9
- 10
- 11
- 12
- 13
- 14
- 15
- 16
- 17
- 18
- 19
- 20
- 21
- 22
- 23
- 24
- 25
- 26
- 27
- 28
- 29
- 30
- 31
- 32
- 33
- 34
- 35
- 36
- 37
- 38
- 39
- 40
- 41
- 42
- 43
- 44
- 45
- 46
- 47
Similar properties for sale in Sant Feliu de Guíxols
Not exactly what you're looking for?










































































































































































































































